【項目概況】
項目名稱:沙河世紀村私宅設計
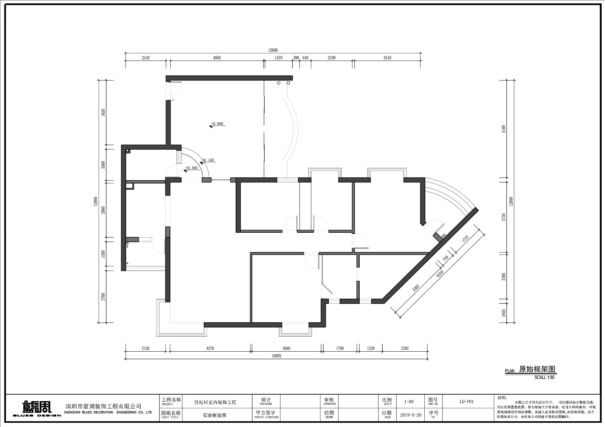
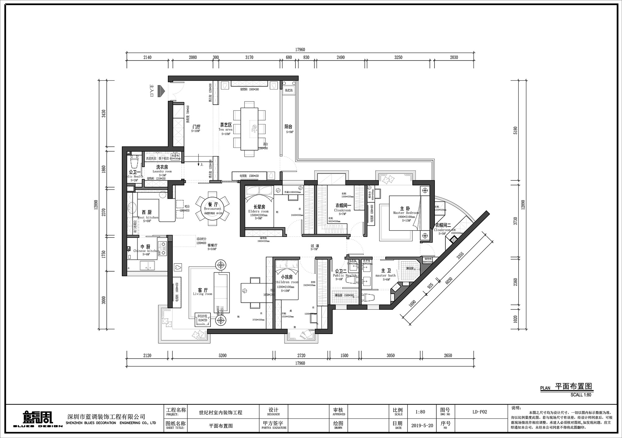
項目地址:深圳 南山
項目面積:170㎡
硬裝設計:藍調設計
軟裝設計:藍調設計
主創設計:徐林
參與設計:徐托思、占思與
中式的特點是大氣穩重婉約,現代家居發展的潮流是簡約實用,二者結合,孕育出的新中式,褪去了中式山水般的厚重感,南木攝影同時保留了它獨特的韻味,在遍地喧囂的城市里給人一種悠然淡定,清新脫俗的感覺。

在光怪陸離的都市中游走,我們接受過太多喧囂亮麗的視覺沖擊,以至于很少能夠真正靜下心來,去享受生活本應有的放松自在。

然而近幾年來,在永無止境的快節奏生活之下,返璞歸真、頤養性情成為越來越多人的精神追求,而富有東方韻味與浪漫情調的家自然成為人們心之向往的理想居所,于是中式元素風靡全球。


中式的特點是大氣穩重婉約,現代家居發展的潮流是簡約實用,二者結合,孕育出的新中式,褪去了中式山水般的厚重感,同時保留了它獨特的韻味,在遍地喧囂的城市里給人一種悠然淡定,清新脫俗的感覺。
家,似乎也在尋找這份寧靜。



本案采用現代設計語言來表達東方的意境,用新中式風格打造出濃濃禪意的家居空間,隱去傳統中式繁雜的設計表現,用減法來表達東方元素。
簡單的語言闡述東方意境,希望能給現代人一種靜謐的生活空間,身處繁華都市太久,便渴望一絲靜謐的身心歸處。
陽光、茶香、聽風、聽雨,你應該享有這種姿態,生活的詩意而滿足。






